Menu
Un projet réalisé par :MKH ARCHITECTE  Architecte à Lognes

Réhabilitation et extension d'une maison d'habitation

 Lognes - 77
MKH ARCHITECTE
Accueil Projets Réhabilitation et extension d'une maison d'habitation

PROGRAMME:
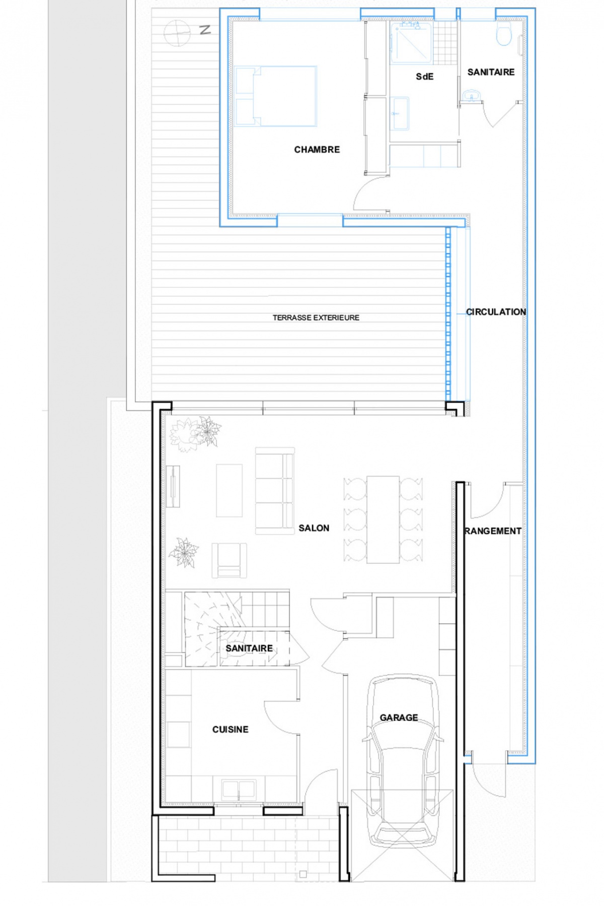
Réhabilitation complète du RDC et construction d’une extension pour la création d’une unité de vie accessible PMR (Chambre, salle d’eau, cuisine, salon), création d’une terrasse/ patio.
Conception des aménagements paysagers avec création d’un potager en escalier

QUALITÉ ENVIRONNEMENTALE
Respect de la RT 2012

SURFACE PLANCHER
85 m² (extension : 40 m²)

Réhabilitation et extension d'une maison d'habitation

Maintenir les personnes âgées dans leur maison le plus longtemps possible est une question à laquelle sont confrontées de nombreuses familles. Ce projet d’extension traite de ce sujet : le client souhaitait pouvoir préparer sa retraite en réalisant une extension en rez-de-chaussée et s’offrir l’opportunité de repenser son jardin et le rapport entre les espaces intérieurs et extérieurs.

Profitant d’un fort dénivelé de terrain, le projet prévoit également une intervention paysagère avec la création d’un potager en terrasses.

  • Réhabilitation et extension d'une maison d'habitation : MKH-architecte-Nantes-Extension-pavillon-sautron-44

    Vue patio

  • Réhabilitation et extension d'une maison d'habitation : MKH-architecte-Nantes-Extension-pavillon-torcy-77

Trouvez un architecte pour votre projet

Protection de vos données personnelles

Depuis toujours, architectes-france.com ne transfère aucune donnée personnelle à d'autres acteurs que ceux directement concernés par le projet (architectes, architectes d'intérieur...) et qui appartiennent à son réseau. Nos listes ne sont jamais transmises ou vendues à des partenaires extérieurs, même si ceux-ci appartiennent au domaine de la construction.
Toute modification dans ce domaine ne serait effectuée qu'avec votre consentement.

Je consens à ce que mes données personnelles soient collectées pour permettre à architectes-france de transférer votre projet aux architectes. Seul Architectes-france, ses équipes internes et la maitrise d'oeuvre concernée par le projet y ont accès. Aucune transmission de données à des tiers à l'exclusion de ceux décrits ci dessus n'est réalisée.

Mes données téléphoniques seront uniquement utilisées par Architectes-france.com et les architectes de notre réseau dans le cadre de la qualification et du suivi de mon projet.

Les données sont conservées pendant une durée de 18 mois courant à partir des derniers contacts effectifs entre architectes-france et vous ou architectes-france et un membre de la maitrise d'oeuvre en rapport avec ce projet et qui serait en relation avec architectes-france.

Conformément à la loi « informatique et libertés », vous pouvez exercer votre droit d'accès aux données vous concernant et les faire rectifier en contactant : Architectes-france, 23 avenue du Mirail - parc du Mirail - 33370 Artigues-près Bordeaux. Tél. 05.47.74.51.01 - contact@architectes-france.com

Trouvez un architecte pour votre projet

Protection de vos données personnelles

Depuis toujours, architectes-france.com ne transfère aucune donnée personnelle à d'autres acteurs que ceux directement concernés par le projet (architectes, architectes d'intérieur...) et qui appartiennent à son réseau. Nos listes ne sont jamais transmises ou vendues à des partenaires extérieurs, même si ceux-ci appartiennent au domaine de la construction.
Toute modification dans ce domaine ne serait effectuée qu'avec votre consentement.

Je consens à ce que mes données personnelles soient collectées pour permettre à architectes-france de transférer votre projet aux architectes. Seul Architectes-france, ses équipes internes et la maitrise d'oeuvre concernée par le projet y ont accès. Aucune transmission de données à des tiers à l'exclusion de ceux décrits ci dessus n'est réalisée.

Mes données téléphoniques seront uniquement utilisées par Architectes-france.com et les architectes de notre réseau dans le cadre de la qualification et du suivi de mon projet.

Les données sont conservées pendant une durée de 18 mois courant à partir des derniers contacts effectifs entre architectes-france et vous ou architectes-france et un membre de la maitrise d'oeuvre en rapport avec ce projet et qui serait en relation avec architectes-france.

Conformément à la loi « informatique et libertés », vous pouvez exercer votre droit d'accès aux données vous concernant et les faire rectifier en contactant : Architectes-france, 23 avenue du Mirail - parc du Mirail - 33370 Artigues-près Bordeaux. Tél. 05.47.74.51.01 - contact@architectes-france.com